MIXED-USE

Visitor Center “INFN-LNGS”

Mixed-Use

Visitor Center

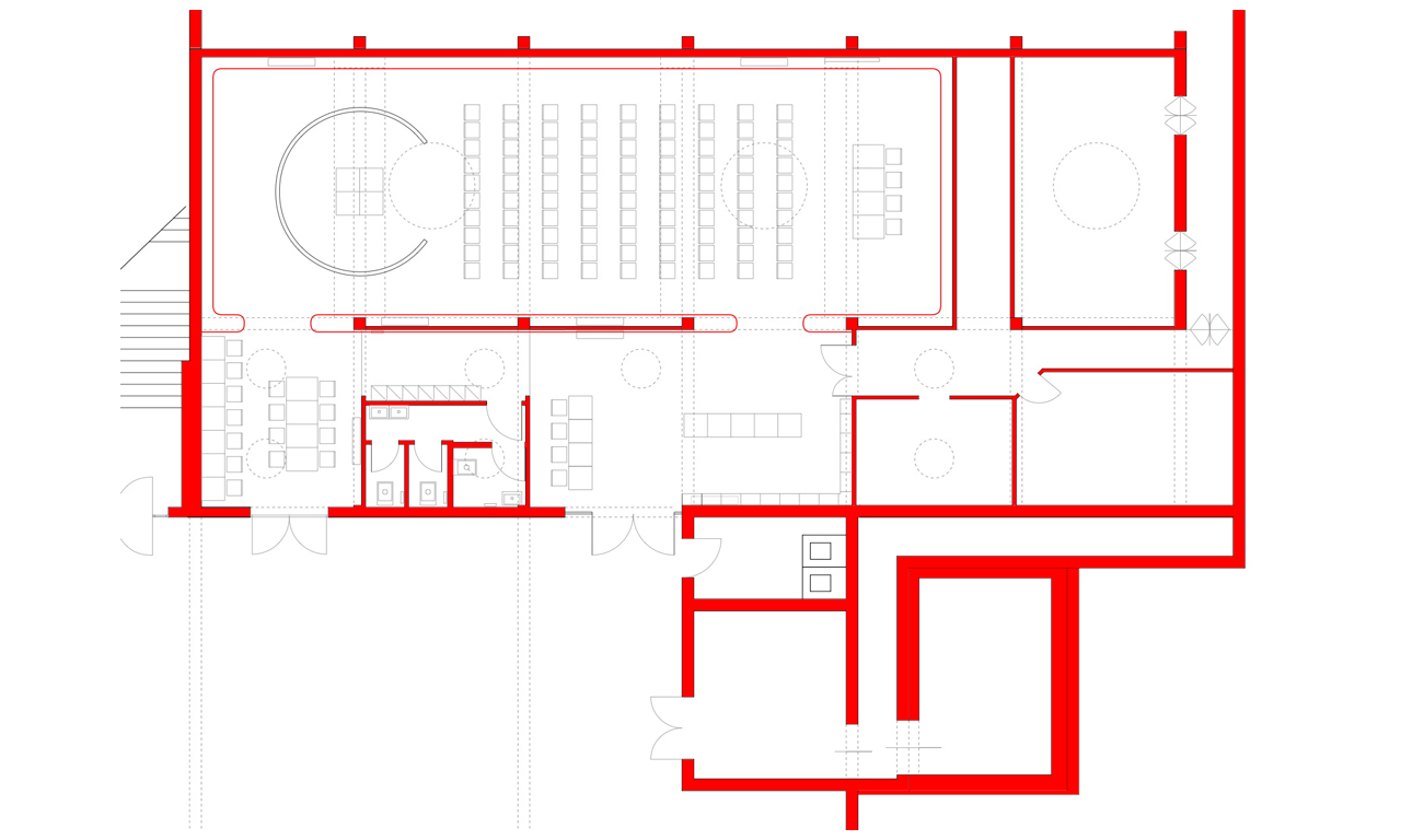
Il progetto per il Centro Visitatori del Laboratorio Nazionale del Gran Sasso - Istituto Nazionale di Fisica Nucleare propone la riqualificazione della "starting-zone" per i visitatori che si accingono ad effettuare il tour all’interno dei Laboratori di Fisica Nucleare. La necessità di effettuare le visite per microgruppi attraverso l’uso di veicoli, impone alla committenza di creare un punto di attesa per i visitatori che attendevano il proprio turno: è nata così l’idea di realizzare un Visitor’s Center all’interno del quale intrattenere gli ospiti con un percorso informativo caratterizzato prevalentemente dalla visione di contenuti multimediali. Oltre all’allestimento della reception in cui i visitatori vengono registrati, nella prima sala filtro, con accesso diretto alla piazzola minibus, è prevista un bookshop. La sala multimediale è caratterizzata da pareti per la visualizzazione di contenuti multimediali, da un Cave per la visione di filmati a 360°, da box touchscreen. Inoltre, l’utilizzo di teli retro-illuminati Barrisol per il soffitto aumenta la sensazione di vivere un viaggio nello spazio attraverso proiezioni tematiche.

ANNO

2010

LUOGO

Assergi, Italy

CATEGORIA

Mixed-use

PROJECT TEAM

Massimiliano Mazzetta

CLIENTE

I.N.F.N., L.D.G.S.

SHARE PROJECT
  • ANNO : 2010
  • LUOGO : Assergi, Italy
  • CATEGORIA : Mixed-use
  • PROJECT TEAM : Massimiliano Mazzetta
  • CLIENTE : I.N.F.N., L.D.G.S.